PLAN豊富な
プランバリエーション。
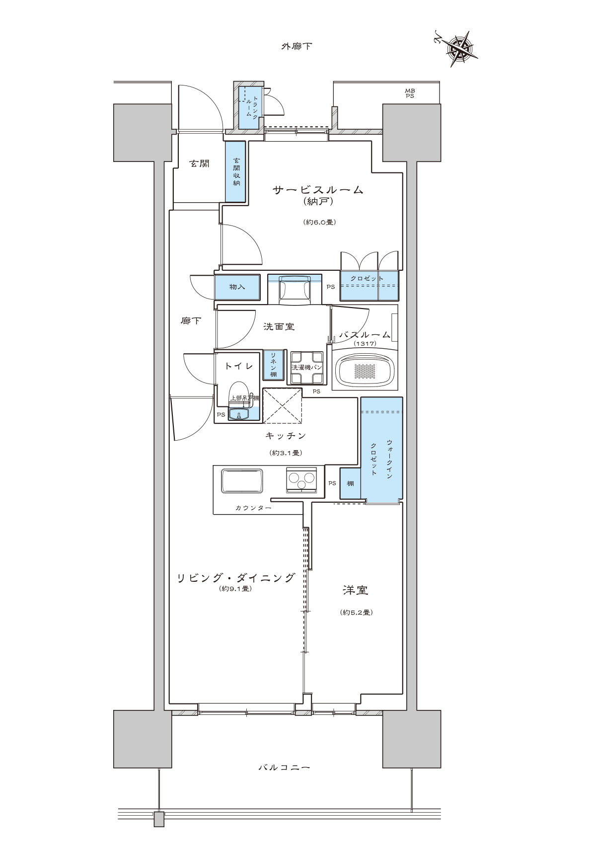
POINT
- done全25タイプのプランバリエーション
- done全住戸リビング・ダイビングに高効率エアコン設置
- done全住戸専用トランクルーム付き
VIEW
PLAN
YOUTUBE
音楽が流れます。音量にご注意ください。
● WIC=ウォークインクロゼット
● SIC=シューズインクローク
● S=サービスルーム(納戸)
● HC=ホームクロゼット
● 掲載の室内写真はBタイプ(1002号室)を2023年3月に撮影したもので、タイプにより室内の形状・色彩・仕様などは異なります。なお、家具・備品などに関しては配置例を示したもので販売価格には含まれません。1002号室は、現在販売対象外住戸です。
● 図面と現況が異なる場合は、現況を優先します。
● 方位記号は若干誤差があります。正確な方位については設計図書でご確認ください。
● 掲載の絵図・写真・間取り図などの無断転載を禁じます。





